Transforming Your Outdoor Space with Expert Landscape Design in Badsworth
- MP Landscape Design

- Jan 30, 2023
- 1 min read
Updated: Oct 27, 2023
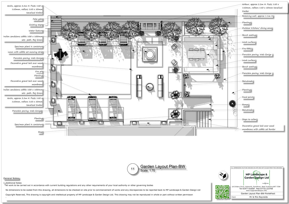
Garden layout plans and walk-through animation for a property in Badsworth.
Designed by by MP Landscape & Garden Designs, this garden in Badsworth exemplifies a seamless fusion of functionality and visual allure. Incorporating various outdoor elements, the design ensures a harmonious outdoor space that caters to both practicality and aesthetic appeal.
A carefully placed canopy offers the perfect blend of shade and protection, creating an inviting area that allows residents to enjoy the outdoors while being shielded from the elements. This thoughtful addition enhances the overall comfort and usability of the outdoor space, providing a seamless transition between indoor and outdoor living.
An outdoor kitchen serves as the heart of entertaining and cooking, promising delightful moments of social gatherings and culinary experiences amidst the natural beauty of the garden. This functional space not only adds practicality but also contributes to the vibrant and inviting ambiance of the outdoor area.
A tranquil water feature adds a touch of serenity, fostering a calming atmosphere that enhances the overall charm of the garden. The strategically placed patio provides an inviting space for outdoor seating and relaxation, ensuring a serene retreat within the property.
The incorporation of timber arches over the paths and an arbour adds a touch of rustic charm, creating captivating focal points that complement the natural aesthetics of the garden. Premium porcelain paving adorned with cobble sets ensures both durability and visual allure, perfectly suited to withstand the demands of the outdoor environment in Badsworth.
Stay tuned to my blog for more insightful tips and inspirations on perfecting your outdoor sanctuary.
#outdoorkitchen#outdoorkitchen#outdoorkitchens#outdoorkitchenideas#outdoorkitchendesign#outdoorkitchendesigner#gardendesign#gardendesign#gardendesigns#gardendesignuk#gardendesigner#gardendesigners#gardendesignideas#gardendesignsideas#landscape#landscape#landscaping#landscapedesign#outdoorliving#outdoorlivingarea#outdoorlivingroom#outdoorlivingideas#outdoorlivingspace#outdoorlivingrooms







































