top of page

Landscape design plans

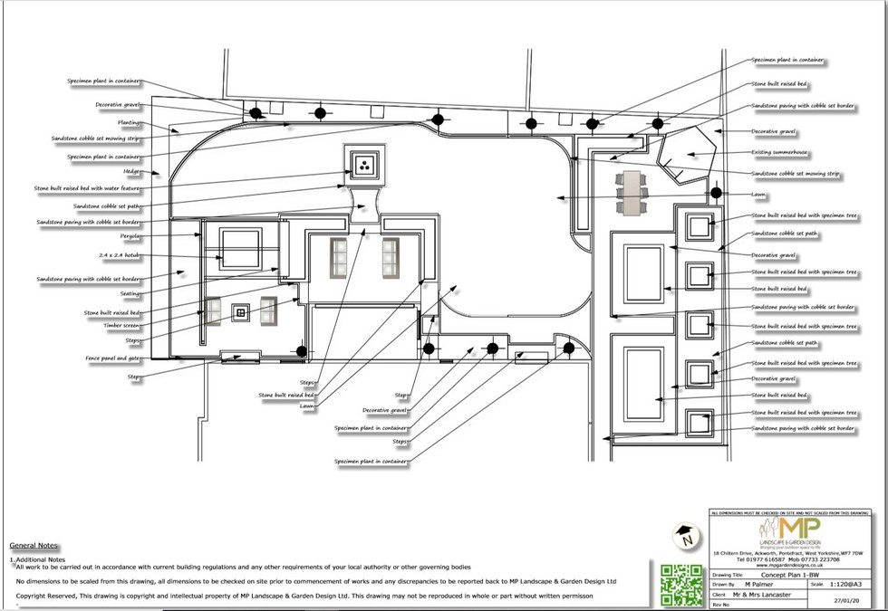
Landscape concept plan-1 and walk through animation for a rear garden in Kirk Smeaton


CONTACT ME

Designing gardens across:

Ackworth • Pontefract • Wakefield • Sheffield • Barnsley • Doncaster • Leeds • Selby • The wider Yorkshire region

Garden designer in Wakefield
 

Name *

Email *

Phone number*

Message

  • TikTok
  • Wix Facebook page
  • Wix Twitter page
  • LinkedIn Social Icon
  • YouTube Social  Icon
  • Instagram Social Icon
  • Whatsapp
  • Pinterest
  • Spotify
  • RSS
Food & Fire Logo
Simplified Equity Release
utility warehouse
Shire Joinery Leeds logo
bottom of page