Modern Garden Design Concept Plans for a Stylish Outdoor Space in Pontefract
- MP Landscape Design

- Mar 14, 2025
- 2 min read
In this blog, I’ll take you through my latest garden design concept plans for a stunning rear garden in Pontefract, designed by MP Landscape & Garden Design Ltd. This carefully planned outdoor space is perfect for relaxation, entertainment, and year-round enjoyment, seamlessly blending contemporary aesthetics with practical functionality. A walkthrough animation provides an immersive look at the completed vision.
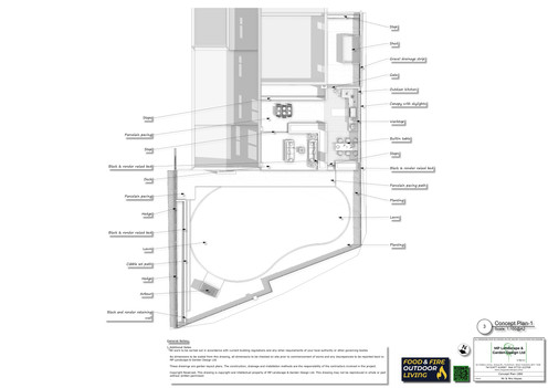
At the heart of the design is a state-of-the-art outdoor kitchen, positioned under a sleek canopy for all-weather use. This fully equipped cooking space flows naturally into a dedicated dining area, creating the ideal setting for al fresco meals and gatherings.
A relaxing seating area features a mobile fire pit, offering warmth and ambiance for cooler evenings. High-quality porcelain paving enhances the modern look, while composite decking adds a stylish yet durable finish to the seating areas.
To introduce greenery and structure, block and render raised beds provide defined planting spaces, adding texture and seasonal interest. Beyond the seating area, a lush lawn extends the garden’s openness, framed by carefully selected planting that enhances the overall aesthetic. A charming arbour creates a picturesque focal point, offering a shaded retreat within the space.
These garden design concept plans by MP Landscape & Garden Design Ltd showcase a perfect blend of contemporary style and functional design, resulting in an outdoor space that is both luxurious and inviting.
With the included walkthrough animation, you can fully experience the envisioned transformation, making it easy to visualize the potential of this beautiful garden.
Discover how MP Landscape & Garden Design Ltd can bring your dream outdoor space to life with this exceptional garden design concept.
Modern Garden Design Concept Plans for a Stylish Outdoor Space in Pontefract
Modern Garden Design Concept Plans for a Stylish Outdoor Space in Pontefract
#outdoorkitchen #outdoorkitchen #outdoorkitchens #outdoorkitchenideas #outdoorkitchendesign #outdoorkitchendesigner #gardendesign #gardendesign #gardendesigns #gardendesignuk #gardendesigner #gardendesigners #gardendesignideas #gardendesignsideas #landscape #landscape #landscaping #landscapedesign #outdoorliving #outdoorlivingarea #outdoorlivingroom #outdoorlivingideas #outdoorlivingspace #outdoorlivingrooms #mpgardendesigns































