Stylish Front Courtyard Garden Concept Plans in Doncaster
- MP Landscape Design

- Sep 19, 2025
- 2 min read
In this blog, I’m sharing my latest garden concept plans for a charming front courtyard garden in Doncaster, designed by MP Landscape & Garden Design. This design combines timeless materials with modern features to create a welcoming, low-maintenance outdoor space with plenty of character.
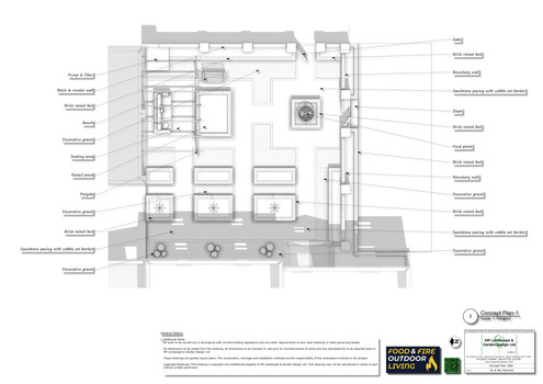
Sandstone Paving with Cobble Set Detailing
The courtyard is paved with natural sandstone, chosen for its warm tones and classic appeal. To add texture and define the layout, cobble sets frame the paving, giving a traditional yet refined look that complements the property.
Brick Raised Beds for Planting
Around the courtyard, I’ve included brick-built raised beds, designed to bring height and structure while providing ample space for layered planting. These raised beds soften the hard landscaping and introduce seasonal colour throughout the year.
Decorative Gravel and Raised Fish Pond
To add further interest and a calming atmosphere, sections of the courtyard feature decorative gravel that contrasts beautifully with the sandstone. At the centre, a raised fish pond acts as a focal point, introducing movement and sound that make the courtyard feel tranquil and inviting.
Patio with Pergola for Outdoor Seating
A patio area with a pergola provides a shaded, comfortable spot for seating. This structure adds height to the courtyard and creates a cosy area to relax while enjoying views of the pond and planting.
Walkthrough Animation for Visualising the Design
These garden concept plans, created by MP Landscape & Garden Design, are brought to life with a detailed walkthrough animation. This allows you to see how the paving, planting, pond, and pergola work together to form a beautifully balanced courtyard space.(Watch more garden walkthrough animations from my recent projects.
Doncaster Garden Designer Services
If you’re looking for a Doncaster garden designer specialising in courtyard garden concept plans, sandstone paving, raised beds, and bespoke water features, this project shows how I can transform compact spaces into stylish, functional outdoor retreats.(View all my garden design services.)
Stylish Front Courtyard Garden Concept Plans in Doncaster
Garden Layout Plans in Leeds: Patio, Outdoor Kitchen & Walkthrough Animation
Stylish Front Courtyard Garden Concept Plans in Doncaster
doorkitchen #outdoorkitchens #outdoorkitchenideas #outdoorkitchendesign #outdoorkitchendesigner #gardendesign #gardendesign #gardendesigns #gardendesignuk #gardendesigner #gardendesigners #gardendesignideas #gardendesignsideas #landscape #landscape #landscaping #landscapedesign #outdoorliving #outdoorlivingarea #outdoorlivingroom #outdoorlivingideas #outdoorlivingspace #outdoorlivingrooms #mpgardendesigns































