Patio designs, for a property in Wentbridge.
- MP Landscape Design

- Oct 31, 2022
- 2 min read
Updated: Oct 20, 2023
Concept plans and walk through animations by MP Landscape & Garden Design for a rear garden in Wentbridge
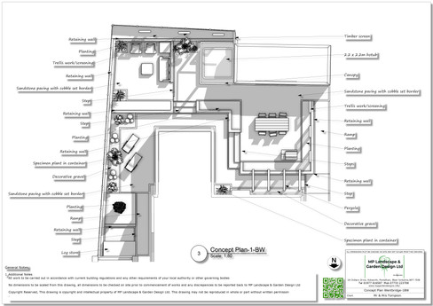
Crafted exclusively for a property in Wentbridge, West Yorkshire, these meticulously designed large patio plans reflect the signature finesse of MP Landscape & Garden Designs. The grandeur of the design is amplified by a multitude of features carefully curated to elevate the outdoor living experience.
The centerpiece of this design is the dedicated hot tub area, strategically positioned to offer both privacy and a seamless blend of luxury and natural surroundings. Its carefully planned integration allows for a private oasis, promising moments of relaxation and rejuvenation within the comfort of your own property.
The multiple patio areas cater to various leisurely pursuits, with one section dedicated to unwinding and basking in the tranquil ambiance, and another reserved for indulgent dining experiences. Each area is meticulously planned to ensure maximum functionality and aesthetic appeal, promising a harmonious balance between comfort and sophistication.
The inclusion of brick raised beds adds a touch of rustic charm while providing an ideal canvas for a diverse range of plants, enabling the creation of a dynamic and vibrant visual tapestry. These beds are meticulously designed to harmonize with the natural aesthetics of Wentbridge, blending seamlessly into the landscape.
Moreover, the incorporation of timber arches and a pergola further enhances the design, adding vertical interest and a touch of elegance to the patio. These architectural elements not only contribute to the overall visual appeal of the space but also offer the opportunity to cultivate climbing plants, creating an enchanting interplay of light and greenery.
The premium Indian sandstone paving, accompanied by the intricate cobble setts, exudes timeless elegance while promising durability and longevity, perfectly suited to withstand the diverse weather conditions of West Yorkshire.
Stay tuned to my blog for more expert insights and inspirations on creating the perfect outdoor living space.































